Project Description

Projekt:
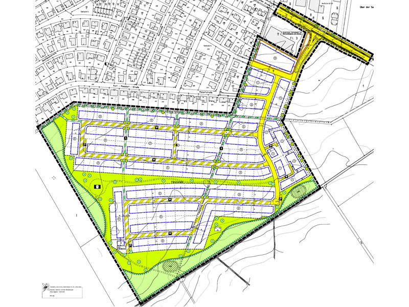
Wohnbaugebiete „Im Försterahl“, Teil I + II + III, Limeshain
Gemarkung Himbach/Rommelhausen

Umlegungsstelle:
Gemeindevorstand der Gemeinde Limeshain

Projektsteuerung:
Land + Forst GmbH

Zeitraum:
Teil I = 2005, Teil II = 2012, Teil III 2015

Vermessungsleistung:
– Bodenordnung in Form eines Umlegungsverfahrens für den I. Teilabschnitt
– Grenzfestlegungsverfahren für den II. und III. Teilabschnitt

Vermessungsfläche:
ca. 10,5 ha, 175 Bauplätze